
钢丝绳卡子
Wire rope clips
注意事项
- 使用钢丝绳卡子固结时,应尽量采用骑马式卡子,同时“矿”形螺栓内侧净距应与钢丝绳直径大小相适应,不得以大卡子夹细绳,螺栓一定要拧紧,应将钢丝绳的直径压扁1/3
- 钢丝绳夹应把夹座扣在钢丝绳的工作段上,U形螺栓扣在钢丝绳的尾段上。
- 钢丝绳夹不得在钢丝绳上交替布置。
- 钢丝绳夹间的距离等于6-7倍钢丝绳直径。
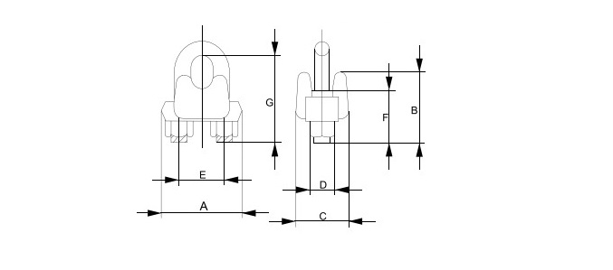
技术参数

|
型 号 Type |
A mm |
B mm |
C mm |
D mm |
E mm |
F mm |
G mm |
|
6 |
22.5 |
14 |
17 |
5 |
12 |
14 |
24.8 |
|
8 |
28.0 |
17 |
21 |
6 |
15 |
16 |
30.7 |
|
10 |
38 |
21 |
28 |
8 |
19 |
20 |
38.0 |
|
12 |
45 |
27 |
34 |
10 |
24 |
25 |
47.6 |
|
15 |
52 |
32 |
40 |
12 |
29 |
30 |
57.2 |
|
20 |
62 |
38 |
46.5 |
14 |
36 |
36 |
71.7 |
|
22 |
69 |
43 |
51.5 |
16 |
40 |
39 |
78.7 |
|
25 |
76 |
50 |
56 |
18 |
43 |
44 |
90.4 |
|
28 |
85 |
57 |
62 |
20 |
48 |
48 |
96.9 |
|
32 |
93 |
61 |
67 |
22 |
55 |
51 |
110.4 |
|
40 |
111 |
73 |
81 |
24 |
64 |
62 |
122.5 |
|
45 |
123 |
86 |
88 |
27 |
72 |
70 |
139.5 |
|
50 |
135 |
95 |
95 |
30 |
80 |
88 |
156.0 |
|
60 |
165 |
130 |
120 |
36 |
105 |
124 |
210 |
|
65 |
175 |
135 |
130 |
36 |
107 |
125 |
236 |


关注微信公众账号